X
1-2-normal
4-4-top-A
4-4-top-B
4-4-top-C
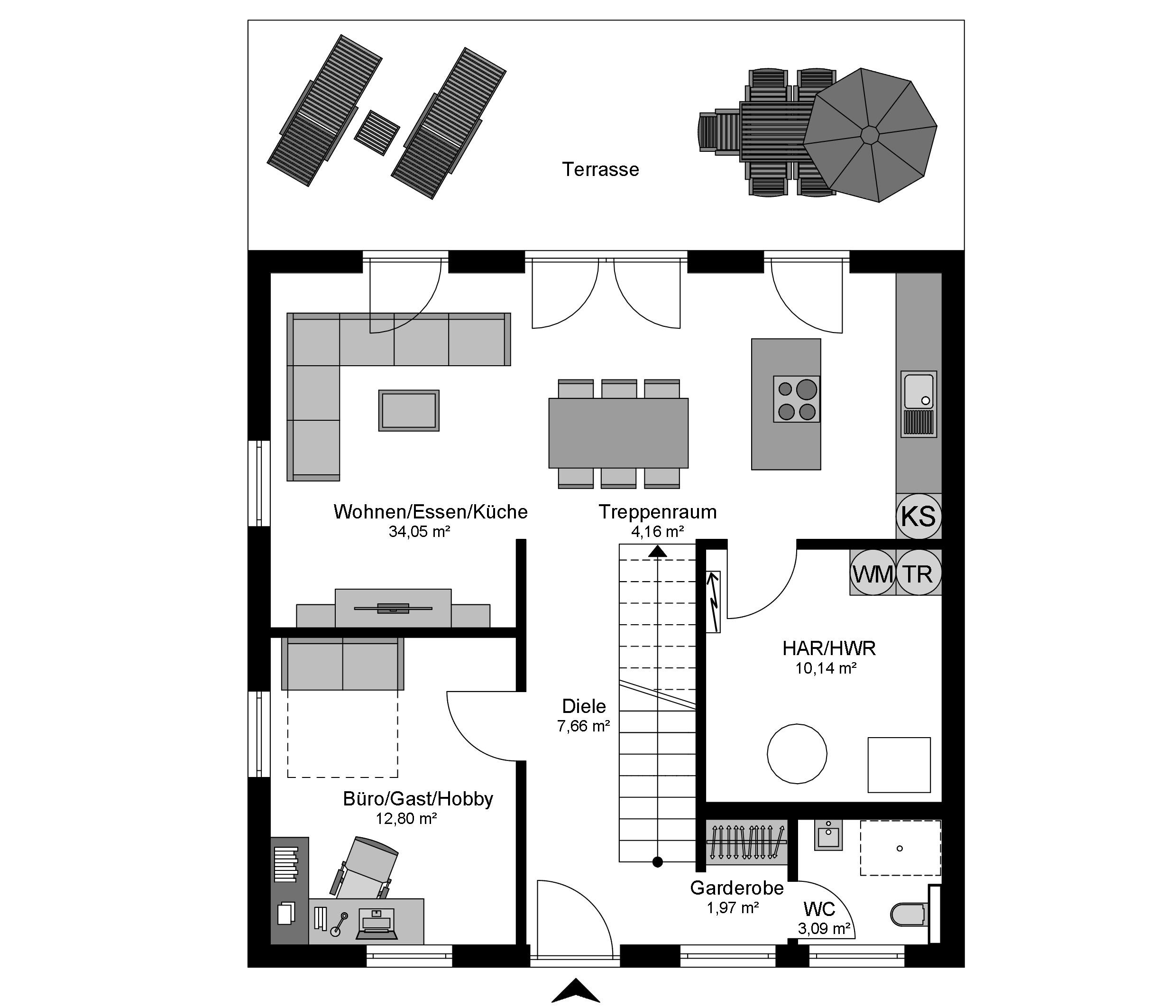
EG
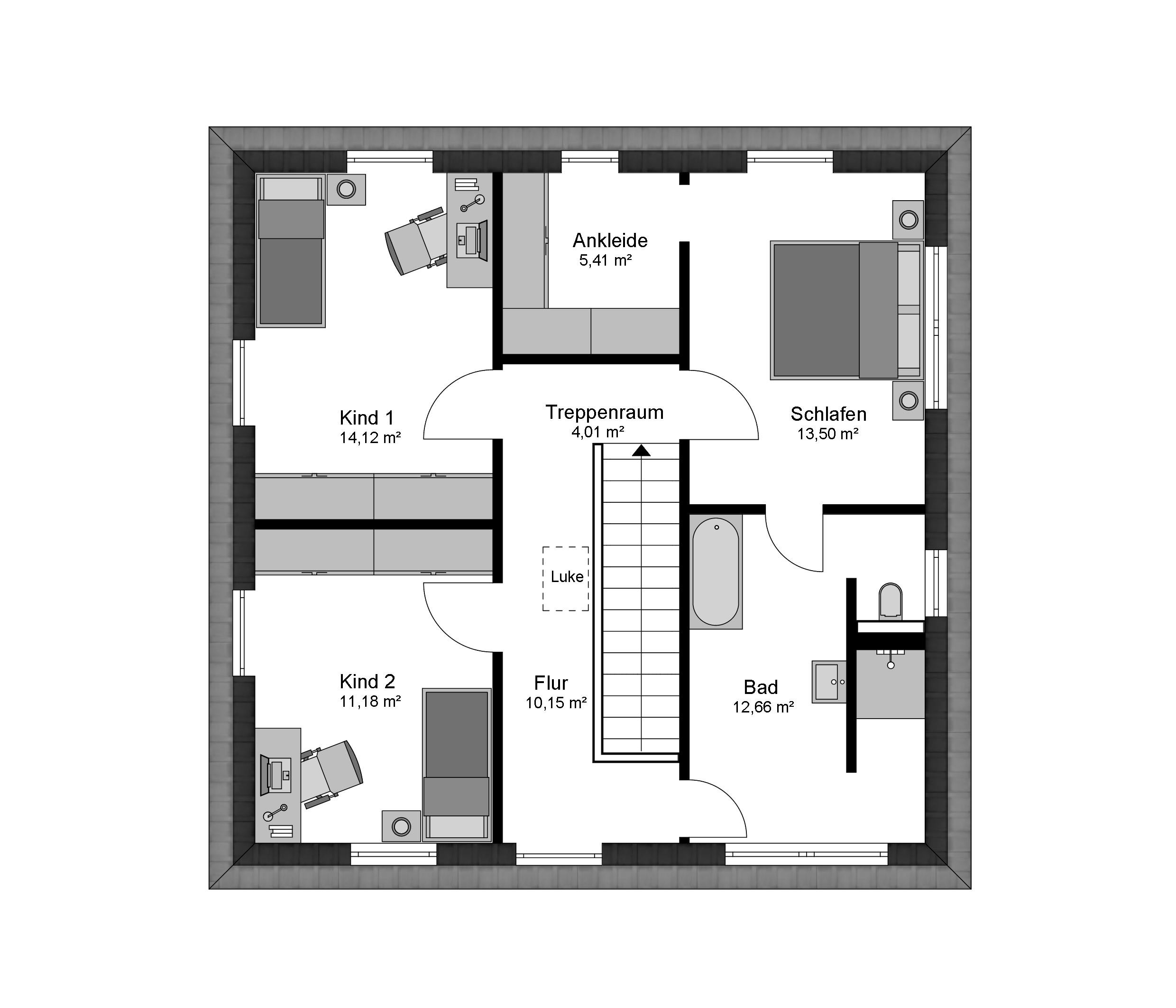
OG
WEK-bb-normal1
WEK-dd-normal1
WEK-aa-normal-1
Schlafen-cc-normal1
kind-dd-normal1
Büro-dd-normal1
Bad-bb-normal1
kind-aa-normal1